-
-
-
Tổng tiền thanh toán:
-
NHÀ MÁY MINGHUI TECHNOLOGY VIỆT NAM
Chủ đầu tư : Công ty TNHH MINGHUI VIỆT NAM
Địa điểm : Đường E3 Khu E, khu công nghiệp Phố Nối A, xã Đình Dù, huyện Văn Lâm, tỉnh Hưng Yên
Nhiệm vụ : Tư vấn thiết kế và chuyển giao công nghệ sàn phẳng không dầm vượt nhịp lớn D-BOX
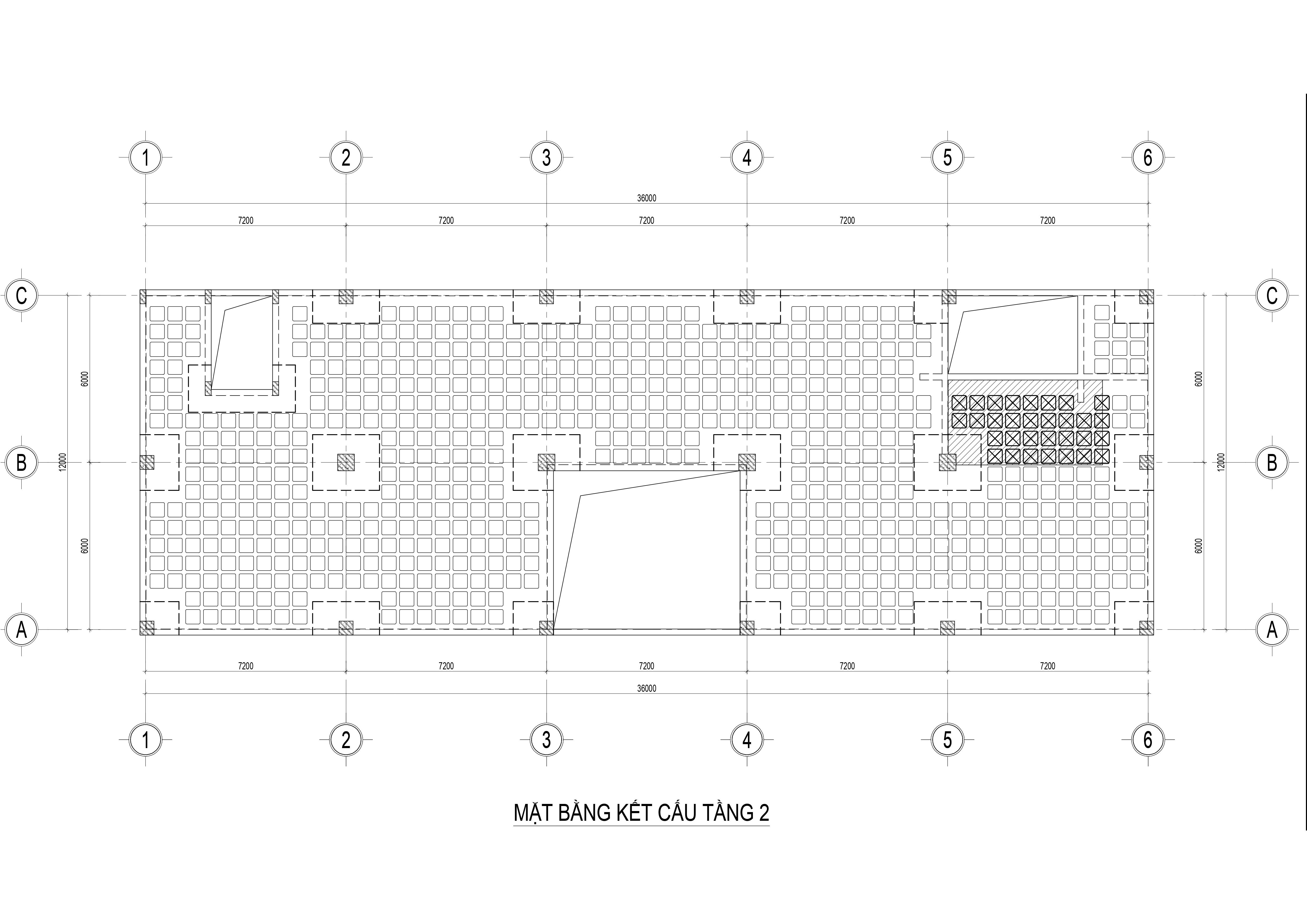
Quy mô : Diện tích ~400m2/sàn
Bước nhịp lớn 7,20 x 6,00(m)


Phối cảnh 3D nhà máy MINGHUI TECHNOLOGY VIỆT NAM
Phối cảnh 3D nhà máy MINGHUI TECHNOLOGY VIỆT NAM
Phối cảnh 3D nhà máy MINGHUI TECHNOLOGY VIỆT NAM